Quadrilocale in vendita

Treviso, Via Leon Battista Alberti - Sant'Angelo
€ 265.000
4 locali 4 locali
115 Mq 115 Mq
2 bagni 2 bagni

Quadrilocale in vendita

Treviso, Via Leon Battista Alberti - Sant'Angelo

Descrizione annuncio

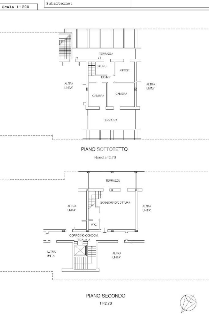
Treviso, Santa Maria del Sile, all'interno del complesso residenziale Parco Ducale, vendesi appartamento di 110 m² disposto su due livelli, posto al secondo ed ultimo piano.

L'immobile, costruito nel 2004 e completamente ristrutturato in stile moderno nel 2014, gode di un'ottima esposizione su tre lati (Est-Sud-Ovest) che garantisce luce naturale per tutto il giorno.

L'abitazione si compone di ingresso, zona giorno open space con caminetto, camera matrimoniale, camera doppia, camera singola, bagno finestrato con doccia e un secondo bagno cieco.

Completano la proprietà tre terrazze per un totale di 50 m² e un garage doppio.

La soluzione è dotata di riscaldamento a pavimento, aria condizionata e impianto di allarme.

Nel 2024 sono stati inoltre ultimati i lavori di efficientamento energetico della palazzina, che hanno previsto l'installazione di pannelli solari con batterie di accumulo e caldaia a pompa di calore.

L'immobile è sito in una zona residenziale comoda a negozi e servizi, a soli 5 minuti in auto dal centro città.

Mostra tutto

Nelle vicinanze

Trasporto pubblico Trasporto pubblico
stazione di Treviso Centrale
stazione di Treviso Centrale
1,3 Km
Trasporto pubblico
1,0 Km
Treviso FS De Gasperi
Treviso FS De Gasperi
1,3 Km
Ricariche auto elettriche Ricariche auto elettriche
Conad Via Ghirada Treviso | EnelX
1,1 Km
MOM - Piazza San Pio X
1,4 Km
MOM - Piazza della Vittoria
1,4 Km
MOM - Via Toniolo
1,6 Km
Scuole Scuole
Scuole
200 m
Scuola Media Mantegna
570 m
Scuola Primaria "Anna Frank"
600 m
Seminario Vescovile Treviso
1,1 Km
Liceo Classico Canova
1,3 Km
Farmacia Farmacia
Farmacia Sant'Angelo
460 m
Farmacia Comunale Terraglio
1,0 Km
Farmacia San Giuseppe
1,1 Km
Farmacia Dalla Zorza
1,2 Km
Farmacia Stiore
1,3 Km
Ospedali Ospedali
Madonnina
1,7 Km
Ospedale Ca' Foncello
2,2 Km
Pronto Soccorso Ospedale "Ca' Foncello"
2,5 Km
Ospedale Regionale "Ca'Foncello"
2,5 Km
Ospedale generale di zona San Camillo
2,8 Km
Supermercati Supermercati
Supermercati Visotto
170 m
Conad Superstore
1,1 Km
Natura Si
1,4 Km
Conad City
1,5 Km
PAM
1,6 Km
Negozi Negozi
Panificio Al Pancotto
1,1 Km
Panificio Forno Breda
1,1 Km
Non solo pane
1,4 Km
Panificio Casellato
1,4 Km
H&M
1,5 Km
Bar Bar
Osteria Numero Uno
1,0 Km
Il Circolino
1,0 Km
Bar dalla Cea
1,0 Km
Pretty Bar
1,1 Km
Maranello
1,1 Km
Ristoranti Ristoranti
Trattoria Alter Ego
420 m
Trattoria al Sole
420 m
Pizzeria Arcobaleno
790 m
Spaghetti House
1,0 Km
Kirin
1,1 Km
Mostra tutto

Caratteristiche

Rif.:
61189406
Piano:
2 di 3 con ascensore (Piano su più livelli)
Box:
1
Terrazzi:
3
Camere da letto:
3
Arredamento:
Assente
Mostra tutto
Prezzo Prezzo
€ 265.000
Rata mutuo Rata mutuo
€ 1.256 / mese
Spese annue Spese annue
€ 1.200
Proponi il tuo prezzoProponi il tuo prezzo

Classe Energetica

A2
A2
A2
A2
A2
A2
A2
A2
A2
EP globale non rinnovabile:
73.78 kW h/m² anno
EP globale rinnovabile:
72.83 kW h/m² anno
EP invernale del fabbricato:
EP estiva del fabbricato:
Anno di costruzione:
2004
Riscaldamento:
Centralizzato
Tipo impianto:
A pavimento
Tipo alimentazione:
Metano

Ti interessa visionare l'immobile?

Fissa un appuntamento  Fissa un appuntamento

Richiedi informazioni

Clicca su Leggi per aprire l'informativa
* Questi campi sono obbligatori

Calcola il tuo mutuo

Semplice e senza impegno
Anticipo

( % )
Mutuo

( % )

pochi semplici passi

inserisci i tuoi dati
Questionario completato
Grazie per aver richiesto un appuntamento senza impegno con un nostro Consulente del Credito e Assicurativo.

Hai inserito correttamente tutti i dati necessari e a breve riceverai una e-mail con un link da convalidare per inviare i tuoi dati.
Affiliato
Studio Primo Sas
Via Cattaneo, 13 31100 Treviso (TV)

Il nostro staff


  • Valter Bassetto
    Affiliato

  • Federica Favaro
    Coordinatrice

  • Daniele Mengo
    Responsabile

  • Gabriele Trevisan
    Collaboratore
Via Cattaneo, 13 31100 Treviso (TV)
Zona: Treviso-Zona Tribunale-S.Angelo-S.Maria Del Sile-Monigo-S.Giuseppe
Mostra su mappa
Orari: Da Lunedì a Venerdì: mattino 09.00 - 12.30 pomeriggio 14.30 - 19.30 Sabato: 09.00 - 12.30 su appuntamento
Affiliato
Studio Primo Sas
Via Cattaneo, 13 31100 Treviso (TV)

2026 Tecnocasa Franchising S.p.A. - P. IVA 08365160152 - Via Monte Bianco 60/A 20089 Rozzano (MI). Ogni agenzia ha un proprio titolare ed è autonoma. Privacy policy | Policy utilizzo | Cookie policy