Villa singola in vendita

Treviso, Viale Monte Grappa - Tribunale Eden
€ 1.290.000
6 locali 6 locali
450 Mq 450 Mq
5 bagni 5 bagni

Villa singola in vendita

Treviso, Viale Monte Grappa - Tribunale Eden

Descrizione annuncio

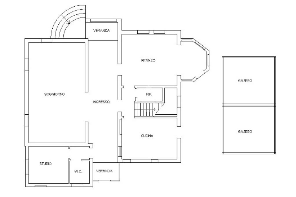
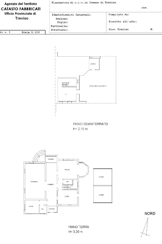
TREVISO – FUORI MURA. Proponiamo in vendita villa storica di circa 450 mq, costruita negli anni ’20, con giardino privato di circa 950 mq.

L’immobile si sviluppa su più livelli. Al piano terra un patio conduce all’ingresso, dove si trovano un soggiorno luminoso con affaccio sul giardino, una cucina abitabile con accesso alla terrazza, una sala da pranzo, uno studio e un bagno. Inoltre, nell’area esterna adiacente alla cucina è stata realizzata una zona piastrellata ad uso terrazza, dotata di due gazebo regolarmente autorizzati, ideale per pranzi e cene in famiglia o per momenti di relax immersi nel verde.

Al primo piano sono presenti una camera con bagno privato, una camera matrimoniale con ampia terrazza, un’ulteriore camera, un guardaroba e tre bagni.

Il piano mansardato, travato a vista, offre un locale utilizzabile secondo le proprie esigenze, con bagno.

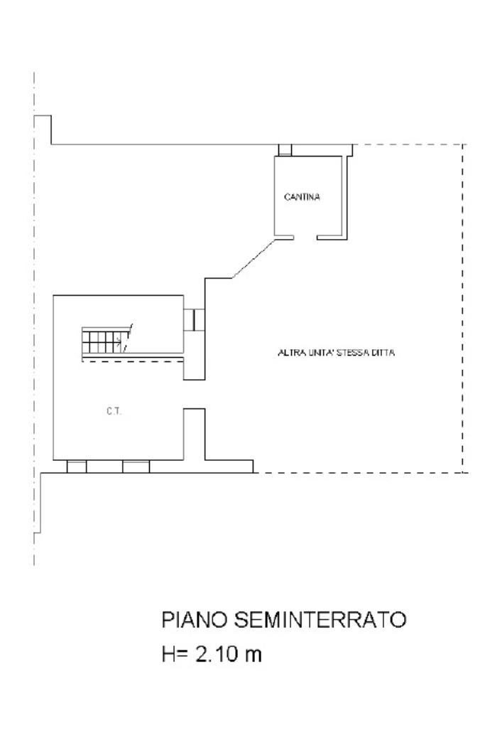
Nel piano interrato si trovano una cantina e la lavanderia/stireria.

La proprietà dispone di un garage doppio, della possibilità di ampliamento e di un progetto già approvato per l’installazione di un ascensore.

Completa di aria condizionata e caminetto esterno in muratura.

La zona è ben servita da negozi e mezzi di trasporto e l’abitazione si trova a soli 50 metri da Porta Santi Quaranta.

Mostra tutto

Nelle vicinanze

Trasporto pubblico Trasporto pubblico
stazione di Treviso Centrale
stazione di Treviso Centrale
1,2 Km
Trasporto pubblico
280 m
Piazza Vittoria - Istituto Riccati
Piazza Vittoria - Istituto Riccati
830 m
Ricariche auto elettriche Ricariche auto elettriche
MOM - Piazza San Pio X
710 m
MOM - Piazza della Vittoria
870 m
MOM - Via Toniolo
1,1 Km
LIDL Treviso
2,0 Km
Conad Via Ghirada Treviso | EnelX
2,1 Km
Scuole Scuole
Scuola Media Statale "A. Serena"
170 m
Liceo Classico Canova
210 m
Scuole
300 m
Collegio Vescovile "Pio X"
300 m
Istituto Statale "Duca degli Abruzzi"
420 m
Farmacia Farmacia
Comunale N.8
240 m
Farmacia Stiore
510 m
Fanoli
770 m
Farmacia Calmaggiore
890 m
Farmacia
1,0 Km
Ospedali Ospedali
Madonnina
870 m
Ospedale generale di zona San Camillo
1,7 Km
Ospedale Ca' Foncello
2,1 Km
Pronto Soccorso Ospedale "Ca' Foncello"
2,3 Km
Ospedale Regionale "Ca'Foncello"
2,4 Km
Supermercati Supermercati
Panorama
630 m
Conad City
670 m
Supermercati
820 m
Natura Si
960 m
PAM
1,1 Km
Negozi Negozi
Non solo pane
700 m
Liu Jo
790 m
Nanà
800 m
Undercolors of Benetton
840 m
Bros
850 m
Bar Bar
Dazio Bar Garden
440 m
Bar
470 m
Bar Battisti
660 m
Bar Centrale
710 m
Orrico
880 m
Ristoranti Ristoranti
Ristoranti
250 m
Kofler Kafé Treviso
280 m
Don Fernando
640 m
Roadhouse Grill
730 m
Cae de Oro
780 m
Mostra tutto

Caratteristiche

Rif.:
61147743
Piano:
Su più livelli di 4
Totale piani:
4
Box:
1
Terrazzi:
1
Camere da letto:
4
Mostra tutto
Prezzo Prezzo
€ 1.290.000
Rata mutuo Rata mutuo
€ 6.089 / mese
Proponi il tuo prezzoProponi il tuo prezzo
Immobile valutato con T·Valuta

Classe Energetica

E
E
E
E
E
E
E
E
E
EP globale non rinnovabile:
175.00 kW h/m² anno
EP globale rinnovabile:
1.00 kW h/m² anno
EP invernale del fabbricato:
EP estiva del fabbricato:
Anno di costruzione:
1920
Riscaldamento:
Autonomo
Tipo impianto:
A radiatori
Tipo alimentazione:
Metano

Ti interessa visionare l'immobile?

Fissa un appuntamento  Fissa un appuntamento

Richiedi informazioni

Clicca su Leggi per aprire l'informativa
* Questi campi sono obbligatori

Calcola il tuo mutuo

Semplice e senza impegno
Anticipo

( % )
Mutuo

( % )

pochi semplici passi

inserisci i tuoi dati
Questionario completato
Grazie per aver richiesto un appuntamento senza impegno con un nostro Consulente del Credito e Assicurativo.

Hai inserito correttamente tutti i dati necessari e a breve riceverai una e-mail con un link da convalidare per inviare i tuoi dati.
Affiliato
Studio Primo Sas
Via Cattaneo, 13 31100 Treviso (TV)

Il nostro staff


  • Valter Bassetto
    Affiliato

  • Irene Gioia Damiano
    Collaboratrice

  • Federica Favaro
    Coordinatrice

  • Daniele Mengo
    Responsabile

  • Gabriele Trevisan
    Collaboratore

  • Margherita Valli
    Collaboratrice
Via Cattaneo, 13 31100 Treviso (TV)
Zona: Treviso-Zona Tribunale-S.Angelo-S.Maria Del Sile-Monigo-S.Giuseppe
Mostra su mappa
Orari: Da Lunedì a Venerdì: mattino 09.00 - 12.30 pomeriggio 14.30 - 19.30 Sabato: 09.00 - 12.30 su appuntamento
Affiliato
Studio Primo Sas
Via Cattaneo, 13 31100 Treviso (TV)

2025 Tecnocasa Franchising S.p.A. - P. IVA 08365160152 - Via Monte Bianco 60/A 20089 Rozzano (MI). Ogni agenzia ha un proprio titolare ed è autonoma. Privacy policy | Policy utilizzo | Cookie policy