Villa singola in vendita

Treviso, Via Castellana - San Giuseppe
€ 375.000
5 locali 5 locali
160 Mq 160 Mq
2 bagni 2 bagni

Villa singola in vendita

Treviso, Via Castellana - San Giuseppe

Descrizione annuncio

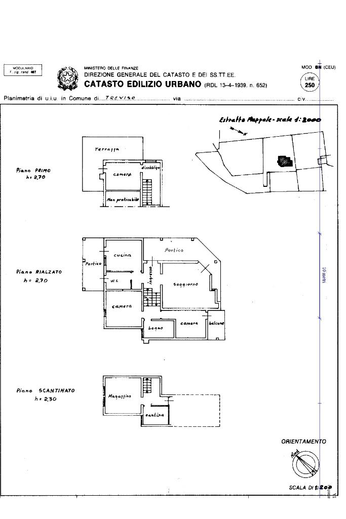
Treviso, località San Giuseppe, proponiamo in vendita villa singola con giardino privato di circa 800 mq, situata in un contesto residenziale tranquillo e comodo ai principali servizi.

L’abitazione, costruita a metà degli anni ’90, è disposta su livelli sfalsati e offre spazi interni ampi e funzionali.

L’ingresso conduce alla zona giorno composta da cucina abitabile e bagno finestrato con doccia, soggiorno con camino a legna e accesso diretto al portico esterno. Al piano rialzato la zona notte comprende una camera matrimoniale, una camera singola e un bagno completo con vasca. Al piano superiore sono presenti una camera doppia con terrazzo abitabile e un’ulteriore stanza mansardata non abitabile, utilizzabile come locale di appoggio.

La proprietà include anche un piano interrato ad uso magazzino/taverna dotata di cucina e stufa economica e il garage.

L’immobile è dotato di infissi in legno con vetrocamera, pavimenti in gres porcellanato in tutti gli ambienti, caldaia a condensazione installata nel 2023 e predisposizione per termostufa. È presente l’allaccio del gas tramite bombolone GPL, con possibilità di collegamento al metano. La fibra ottica arriva fino al confine della proprietà.

All’esterno si trovano due tettoie utilizzate per posto auto e camper e ulteriori spazi da utilizzare secondo necessità.

La casa è realizzata con muri portanti dotati di isolamento a intercapedine, mentre la copertura del tetto è costituita da un pannello isolante posato tra due guaine protettive.

Possibilità di acquistare un terreno agricolo di circa 3.300 mq, adiacente alla casa.

Mostra tutto

Nelle vicinanze

Trasporto pubblico Trasporto pubblico
Paese - Castagnole
Paese - Castagnole
2,9 Km
Trasporto pubblico
980 m
Treviso Aeroporto, Parking E
Treviso Aeroporto, Parking E
1,4 Km
Ricariche auto elettriche Ricariche auto elettriche
MOM - Piazza San Pio X
2,9 Km
Scuole Scuole
Scuola Elementare
780 m
Scuola elementare statale "Rambaldo degli Azzoni"
1,2 Km
Scuole
1,3 Km
Istituto Tecnico Statale "Andrea Palladio"
1,7 Km
Liceo Scientifico Statale "Leonardo da Vinci"
1,7 Km
Farmacia Farmacia
Farmacia
1,4 Km
Farmacia San Giuseppe
1,5 Km
Farmacia Stiore
1,7 Km
Farmacia Santa Bona
1,9 Km
Farmacia Sant'Angelo
2,1 Km
Ospedali Ospedali
Madonnina
1,4 Km
Supermercati Supermercati
Supermercati
1,4 Km
Panorama
1,6 Km
Alì
1,9 Km
In's
2,2 Km
Iperlando
2,3 Km
Negozi Negozi
Negozi
50 m
Panificio Forno Breda
1,5 Km
Non solo pane
2,9 Km
Liu Jo
3,0 Km
Nanà
3,0 Km
Bar Bar
Ginger Bar
700 m
Passaparola
1,0 Km
Bar
1,0 Km
Bottolo
1,0 Km
Maranello
1,5 Km
Ristoranti Ristoranti
Pizzeria al Laghetto
610 m
Pizzeria da Giorgio
1,0 Km
Ristoranti
1,0 Km
Pizzeria Mondo Pizza
1,1 Km
Fabbrica di Pedavena
1,1 Km
Mostra tutto

Caratteristiche

Rif.:
61148482
Piano:
Su più livelli di 3
Totale piani:
3
Box:
1
Terrazzi:
1
Camere da letto:
3
Mostra tutto
Prezzo Prezzo
€ 375.000
Rata mutuo Rata mutuo
€ 1.777 / mese
Proponi il tuo prezzoProponi il tuo prezzo

Classe Energetica

E
E
E
E
E
E
E
E
E
EP globale non rinnovabile:
180.00 kW h/m² anno
EP globale rinnovabile:
1.00 kW h/m² anno
EP invernale del fabbricato:
EP estiva del fabbricato:
Anno di costruzione:
1993
Riscaldamento:
Autonomo
Tipo impianto:
A radiatori
Tipo alimentazione:
GPL

Ti interessa visionare l'immobile?

Fissa un appuntamento  Fissa un appuntamento

Richiedi informazioni

Clicca su Leggi per aprire l'informativa
* Questi campi sono obbligatori

Calcola il tuo mutuo

Semplice e senza impegno
Anticipo

( % )
Mutuo

( % )

pochi semplici passi

inserisci i tuoi dati
Questionario completato
Grazie per aver richiesto un appuntamento senza impegno con un nostro Consulente del Credito e Assicurativo.

Hai inserito correttamente tutti i dati necessari e a breve riceverai una e-mail con un link da convalidare per inviare i tuoi dati.
Affiliato
Studio Primo Sas
Via Cattaneo, 13 31100 Treviso (TV)

Il nostro staff


  • Valter Bassetto
    Affiliato

  • Federica Favaro
    Coordinatrice

  • Daniele Mengo
    Responsabile

  • Gabriele Trevisan
    Collaboratore
Via Cattaneo, 13 31100 Treviso (TV)
Zona: Treviso-Zona Tribunale-S.Angelo-S.Maria Del Sile-Monigo-S.Giuseppe
Mostra su mappa
Orari: Da Lunedì a Venerdì: mattino 09.00 - 12.30 pomeriggio 14.30 - 19.30 Sabato: 09.00 - 12.30 su appuntamento
Affiliato
Studio Primo Sas
Via Cattaneo, 13 31100 Treviso (TV)

2026 Tecnocasa Franchising S.p.A. - P. IVA 08365160152 - Via Monte Bianco 60/A 20089 Rozzano (MI). Ogni agenzia ha un proprio titolare ed è autonoma. Privacy policy | Policy utilizzo | Cookie policy