Porzione di bifamiliare in vendita

Treviso, Via delle cave - Sant''Antonino
€ 550.000
4 locali 4 locali
165 Mq 165 Mq
2 bagni 2 bagni

Porzione di bifamiliare in vendita

Treviso, Via delle cave - Sant''Antonino

Descrizione annuncio

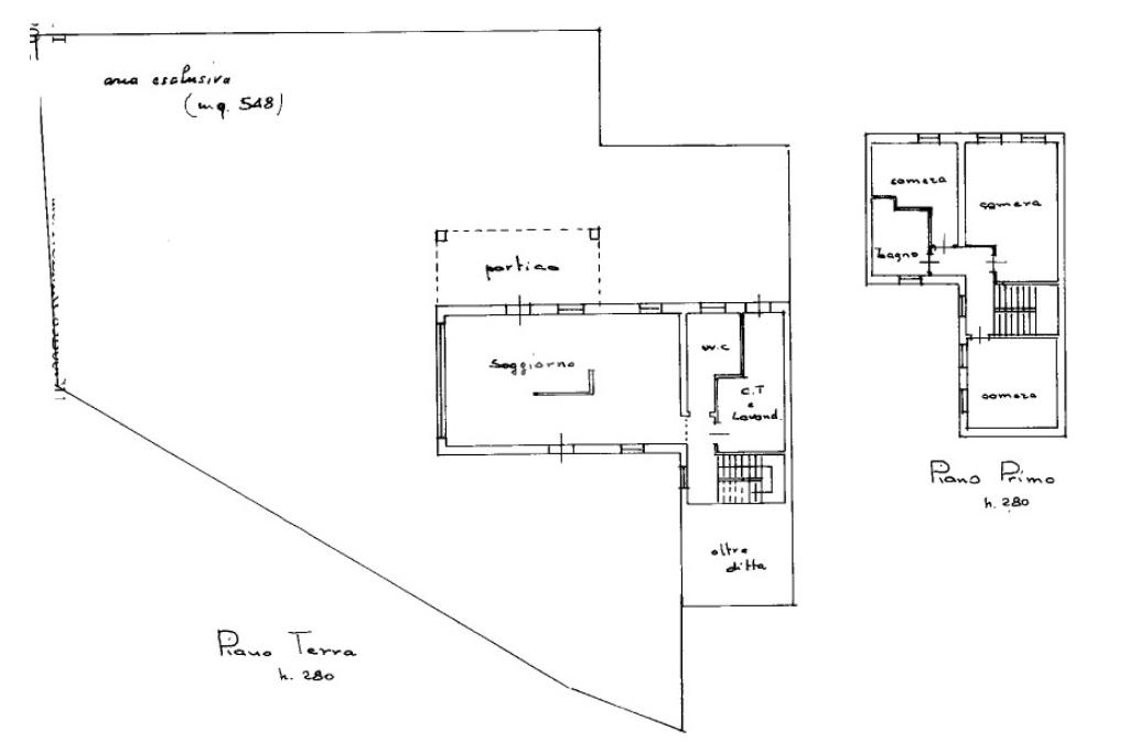
Situata in una zona tranquilla di Treviso, proponiamo in vendita una porzione di bifamiliare edificata nel 1998 e sviluppata su due livelli fuori terra. L'abitazione si distingue per un'ampia metratura commerciale di circa 165 mq, inserita in un lotto di terreno di proprietà esclusiva che si estende per circa 2.000 mq.

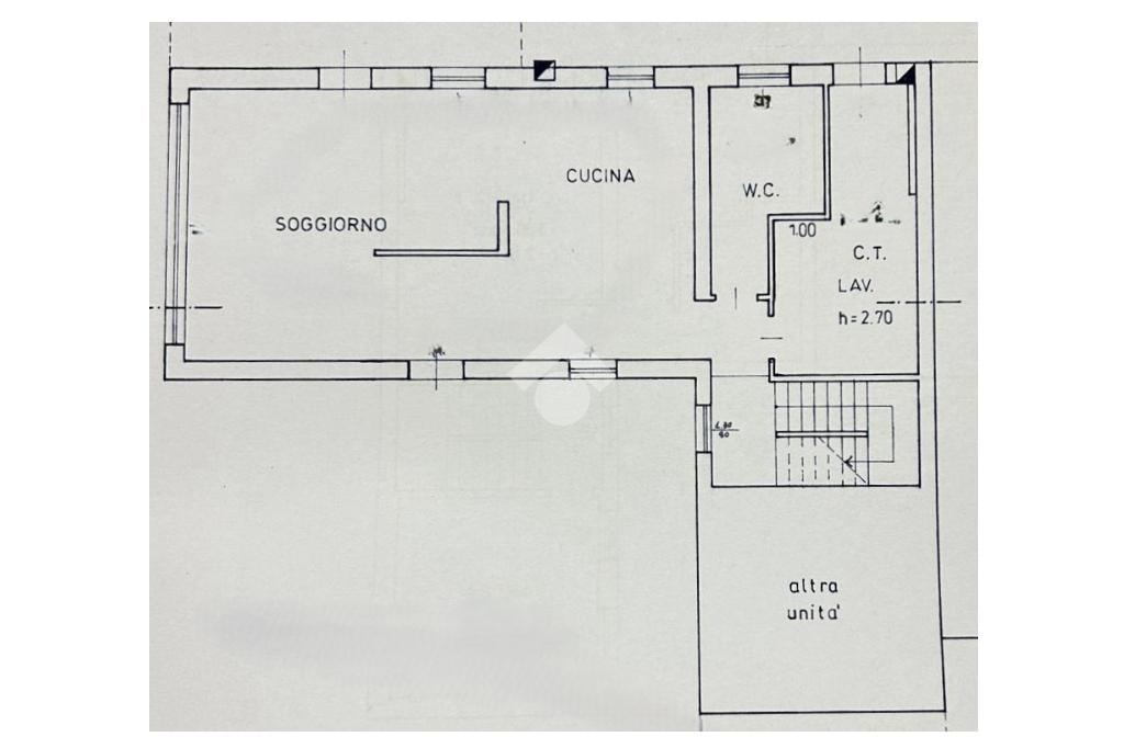
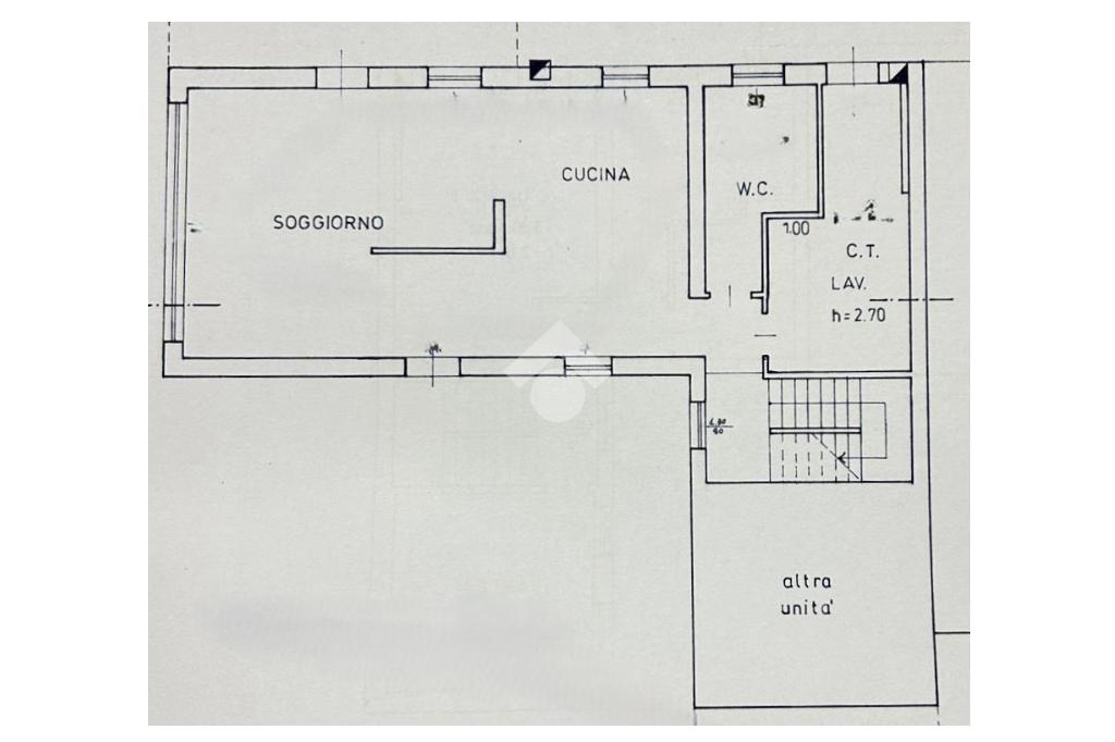
La zona giorno al piano terra si compone di un ingresso che conduce a un ampio soggiorno in open space con la cucina. Il piano è completato da un bagno con doccia e da una zona lavanderia separata che ospita anche la centrale termica. La zona notte, situata al primo piano, comprende tre camere da letto (due matrimoniali e una doppia) e un ulteriore servizio dedicato.

Per quanto riguarda le finiture, la zona giorno presenta pavimentazioni in legno e parti in grès, mentre per la zona notte è stato scelto il legno. Gli infissi interni sono realizzati in legno con vetrocamera. L'immobile è dotato di un sistema di riscaldamento autonomo a radiatori con caldaia a condensazione, quest'ultima recentemente rinnovata. L'efficienza energetica è supportata da un impianto fotovoltaico da 10 kW installato nel 2025.

L’area esterna, caratterizzata dal generoso giardino privato completo di piscina, include un cancello elettrico e la presenza di un garage e posti auto. La proprietà gode di un'esposizione su tre lati (Nord, Est, Sud), garantendo una buona luminosità naturale durante l'intera giornata.

La zona è ben collegata e permette di raggiungere agevolmente il centro storico in 10 minuti e le principali arterie stradali.

Mostra tutto

Nelle vicinanze

Trasporto pubblico Trasporto pubblico
stazione di Treviso Centrale
stazione di Treviso Centrale
2,2 Km
Fronte Via Gelsomini
Fronte Via Gelsomini
870 m
Bivio Via Gelsomini
Bivio Via Gelsomini
880 m
Ricariche auto elettriche Ricariche auto elettriche
MOM - Via Toniolo
2,3 Km
Conad Via Ghirada Treviso | EnelX
2,4 Km
MOM - Piazza della Vittoria
2,5 Km
MOM - Piazza San Pio X
2,6 Km
Scuole Scuole
Scuole
910 m
FISM Treviso
1,0 Km
Scuola elementare statale Luigi Carrer
1,1 Km
Scuola media Statale Felissent
1,4 Km
Scuole Pubbliche
1,7 Km
Farmacia Farmacia
Comunale N.5 Sant'Antonino
1,2 Km
Farmacia Trevigiana
1,3 Km
Farmacia alla Fiera
1,3 Km
Farmacia Internazionale
1,6 Km
Farmacia del Sile
1,7 Km
Ospedali Ospedali
Ospedale Regionale "Ca'Foncello"
1,1 Km
Pronto Soccorso Ospedale "Ca' Foncello"
1,1 Km
Ospedale Ca' Foncello
1,3 Km
Ospedale generale di zona San Camillo
2,9 Km
Supermercati Supermercati
Eurospin
890 m
Lidl
1,1 Km
Famila
1,2 Km
Despar
1,2 Km
Alì
1,3 Km
Negozi Negozi
Manai
980 m
Linea Intimo
1,6 Km
Panificio Al Pancotto
2,2 Km
Panificio Conte
2,3 Km
Goldenpoint
2,3 Km
Bar Bar
Bar
1,2 Km
B.square
1,3 Km
Bar Trattoria Postumia Di Rizzoni Bruno & C. Snc
1,5 Km
Bar dalla Cea
2,2 Km
Pretty Bar
2,2 Km
Ristoranti Ristoranti
Ristorante Pizzeria Do Leoni
760 m
Ristorante La Cavana del Sile
830 m
Sakura
940 m
Pizzeria Gelateria Lago Verde
1,3 Km
Pizzeria Montelliana
1,3 Km
Mostra tutto

Caratteristiche

Rif.:
61179123
Piano:
Su più livelli di 2
Totale piani:
2
Box:
1
Camere da letto:
3
Arredamento:
Assente
Mostra tutto
Prezzo Prezzo
€ 550.000
Rata mutuo Rata mutuo
€ 2.606 / mese
Proponi il tuo prezzoProponi il tuo prezzo
Immobile valutato con T·Valuta

Classe Energetica

E
E
E
E
E
E
E
E
E
EP globale non rinnovabile:
100.00 kW h/m² anno
EP globale rinnovabile:
1.00 kW h/m² anno
EP invernale del fabbricato:
EP estiva del fabbricato:
Anno di costruzione:
1998
Riscaldamento:
Autonomo
Tipo impianto:
A radiatori
Tipo alimentazione:
Metano

Ti interessa visionare l'immobile?

Fissa un appuntamento  Fissa un appuntamento

Richiedi informazioni

Clicca su Leggi per aprire l'informativa
* Questi campi sono obbligatori

Calcola il tuo mutuo

Semplice e senza impegno
Anticipo

( % )
Mutuo

( % )

pochi semplici passi

inserisci i tuoi dati
Questionario completato
Grazie per aver richiesto un appuntamento senza impegno con un nostro Consulente del Credito e Assicurativo.

Hai inserito correttamente tutti i dati necessari e a breve riceverai una e-mail con un link da convalidare per inviare i tuoi dati.
Affiliato
Studio Primo Sas
Via Cattaneo, 13 31100 Treviso (TV)

Il nostro staff


  • Valter Bassetto
    Affiliato

  • Federica Favaro
    Coordinatrice

  • Daniele Mengo
    Responsabile

  • Gabriele Trevisan
    Collaboratore
Via Cattaneo, 13 31100 Treviso (TV)
Zona: Treviso-Zona Tribunale-S.Angelo-S.Maria Del Sile-Monigo-S.Giuseppe
Mostra su mappa
Orari: Da Lunedì a Venerdì: mattino 09.00 - 12.30 pomeriggio 14.30 - 19.30 Sabato: 09.00 - 12.30 su appuntamento
Affiliato
Studio Primo Sas
Via Cattaneo, 13 31100 Treviso (TV)

2026 Tecnocasa Franchising S.p.A. - P. IVA 08365160152 - Via Monte Bianco 60/A 20089 Rozzano (MI). Ogni agenzia ha un proprio titolare ed è autonoma. Privacy policy | Policy utilizzo | Cookie policy